東京都で不動産関連サービスを展開されているお客様より、書類保管用スチールラックについてお問い合わせをいただきました。
不動産業務では、契約書類や図面、登記関連資料など、長期保管が必要な書類を数多く取り扱います。
そのため、オフィス内の収納スペースだけでは収まりきらず、保管場所の確保に悩まれるケースも少なくありません。
今回のお客様も書類保管に悩まれ、トランクルームを活用した収納をご検討され、当店にご相談をいただきました。
| 都道府県 | 東京都千代田区 |
|---|---|
| 業種 | 不動産関係 |
| 種類 | 軽中量スチール棚 |
| 耐荷重 | 200kg/段 |
| 台数 | 12台 |
| オプション | 転倒防止ベース |
| フロア数 | 3部屋 |
| 事例ID | 8297 |
レンタル物件でも安心して使える書類保管ラックの導入
トランクルームへの導入をご検討されるにあたり、お客様は以下のような課題を抱えていらっしゃいました。
- 1.各部屋の間取りに合わせて、効率的なレイアウト設計が必要
- 2.転倒対策を講じたいが、レンタル物件のため床や壁に直接固定できない
- 3.設置場所が狭いため、組み立てや設置が問題なく行えるか不安がある
1.効率的なレイアウトをご提案
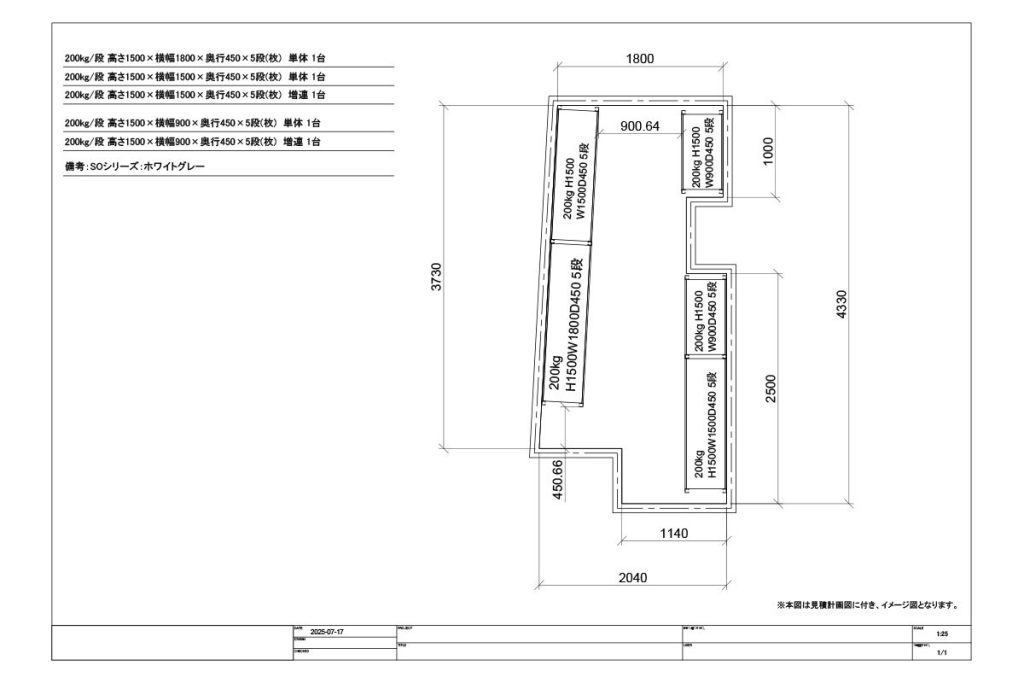
当店では、まずトランクルームの寸法や形状に基づいて配置図を作成し、収納可能なスチールラックの台数を算出しました。
さらに、豊富なサイズ展開を活かし、複雑な形状の部屋でもデッドスペースを最小限に抑えたレイアウトをご提案しました。

2.床への固定が行えない物件での転倒対策
多くの賃貸物件では、内装の原状回復が求められることから、床や壁を傷つけるアンカー固定は現実的ではありません。
そこで、スチールラックの転倒防止策として、アンカーを使用せずに転倒リスクを軽減できる「転倒防止ベース」をご提案しています。
3.設置スペースの不安も事前確認で解消
当店では、製品の搬入経路や設置場所に不安がある場合、施工前に現地の状況を確認することも可能です。
本案件でも、お客様より「狭いスペースで組み立てができるか心配」とのご相談をいただき、事前に現地を確認したうえで、組み立て作業を実施いたしました。
その結果、搬入から設置までスムーズに進めることができました。
※現地調査に関しては、状況や地域によって費用が発生する場合があります。詳細はお問い合わせください。
まとめ
今回の事例では、不動産関連サービス業のお客様に対し、スチールラックの選定とレイアウトのご提案をいたしました。
書類の増加による収納不足や、限られたスペースで無駄なく設置・レイアウトできるかといった課題は、不動産業界に限らず多くのオフィスで共通しています。
特に、デジタル化が十分に進んでおらず紙の資料や契約書類を多く扱う業界では、保管量が増えやすく、その結果こうした課題に直面しやすい傾向があります。
たとえば、
- 「書類や資料の保管量が増え、オフィス内に収まりきらない」
といったお悩みをお持ちの場合でも、当店にお任せいただければ、スチールラックの選定からレイアウト設計、組み立て・設置まで一貫して対応いたします。
書類の保管方法を見直したい方や、収納効率の改善をお考えの方は、どうぞお気軽にご相談ください。
カテゴリ:スチールラック
業務用スチールラックの価格を10秒で簡単検索
シーエスラックでは、お客さまのご希望に合わせて簡単に価格検索できる「スチールラック検索エンジン」を提供しています。

使い方はとても簡単です。
スチールラック検索エンジンのページに移動してから
- タイプ
- 耐荷重
- サイズ
- 段数
- 形式
を選択するだけです。
送料を含めたスチールラックの価格と出荷日の目安が瞬時に表示されます。
レイアウト変更が簡単になる「キャスター付き」や地震対策できる「転倒防止金具付きラック」の価格も瞬時に表示されますので是非ご活用ください。








